En Alquiler
Galpon en Venta en Parque Patricios, Capital Federal
Código: 53021

Inclan 3100, Parque Patricios, Capital Federal, Argentina.

$950.000

Galpón
Compartir esta Propiedad

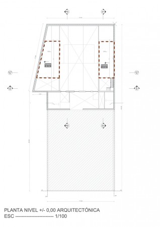
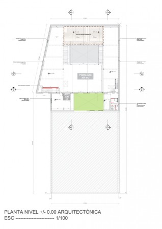
Descripción de la Propiedad

Excelente Galpón con cabriadas metálicas restauradas.
-Entrepisos de losa de 82 m2.
-Cubierta de techo nueva de paneles termoaislantes con interior de madera fenólica.
-Muros de ladrillo a la vista sellados.
-Estructuras de Hormigón pulidas, instalación cloacal lista.
-Caño hidrante en la puerta del local,
-Acometida eléctrica trifásica.
-Planta baja con 4 metros de Altura.
-Vacío central con barandas nuevas.
-Garaje/Deposito Propio.
-Baño completo en Planta Baja
-Instalaciones listas para Baño en Planta alta
-2 espacios para oficina anexos al galpón.
-Especial para industrias tecnológicas, oficinas, taller.

Se accede por calle interna común de 2,70m de ancho y 4,2 de altura.
FyF inmobiliaria contacto 11-2524-2020


FyF inmobiliaria CUIT : ********-3 C.U.C.I.C.B.A. Matrícula Nº 4547

AVISO LEGAL: Las descripciones arquitectónicas y funcionales, valores de expensas, impuestos y servicios, fotos y medidas de este inmueble son aproximados. Los datos fueron proporcionados por el propietario y pueden no estar actualizados a la hora de la visualización de este aviso por lo cual pueden arrojar inexactitudes y discordancias con las que surgen de los las facturas, títulos y planos legales del inmueble. El interesado deberá realizar las verificaciones respectivas previamente a la realización de cualquier operación, requiriendo por sí o sus profesionales las copias necesarias de la documentación que corresponda.

Venta supeditada al cumplimiento por parte del propietario de los requisitos de la resolución general Nº 2371 de la AFIP (pedido de COTI)

Esta unidad es apta para personas con movilidad reducida.
“Para los casos de alquiler de vivienda, el monto máximo de comisión que se le puede requerir a los propietarios será el equivalente al cuatro con quince centésimos por ciento (4,15%) del valor total del respectivo contrato. Se encuentra prohibido cobrar a los inquilinos que sean personas físicas comisiones inmobiliarias y gastos de gestoría de informes”.

Mas detalles